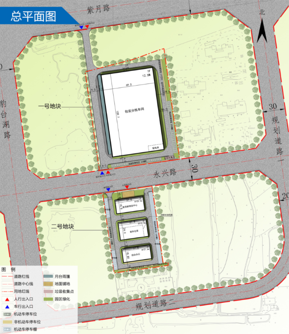
潜江市农产品现代物流基础设施建设项目(一标段)总平面图批前公示
索 引 号:
011396186/2026-03992
主题分类:
城市规划;城乡建设(含住房)
发布机构:
潜江市自然资源和城乡建设局
发文日期:
2026年01月19日 15:48:48
文 号:
文 号:无
效力状态: 有效
发布日期:
2026年01月19日 15:48:48
名 称:
潜江市农产品现代物流基础设施建设项目(一标段)总平面图批前公示
依据《中华人民共和国城乡规划法》和《湖北省城乡规划条例》的有关规定,现对《潜江市农产品现代物流基础设施建设项目(一标段)总平面图》进行批前公示,公示期限10个工作日(2026年1月19日—2026年1月30日) 。
总用地面积为21989.86㎡(其中一号地块净用地面积14918.50㎡,二号地块净用地面积7071.36㎡) 。一号地块容积率1.01,建筑密度50.6%;二号地块容积率1.41,建筑密度43.8%。
相关利害关系人如有异议可在公示期间以书面形式向潜江市自然资源和城乡建设局反馈。
联系人:张静
监督电话:13997960880
潜江市自然资源和城乡建设局
2026年1月19日
相关链接:
附件:公示展板.pdf



